logo cabinet d'Architecture en Paysage
Traduction en Anglais
Traduction en Chinois
....NOSREFERENCES
         
 
ACCUEIL REFERENCES
ETUDES PAYSAGERES
ETUDES ET PROJETS
URBAINS
.. Parcs urbains
.. Requalification urbaine
.. Projets privés
URBANISME
.. PLU
.. Zones d'activités divers
PARCS EOLIENS
.. Projets parcs éoliens
.. Zone Développement Eolien
PARCS SOLAIRES
PROJETS DE TOURISME
REALISATION MAQUETTES
 
REFERENCES AGENCE
D'URBANISME
logo agence "Cadre de ville"
    URBANISME
Zones d'activités divers

 
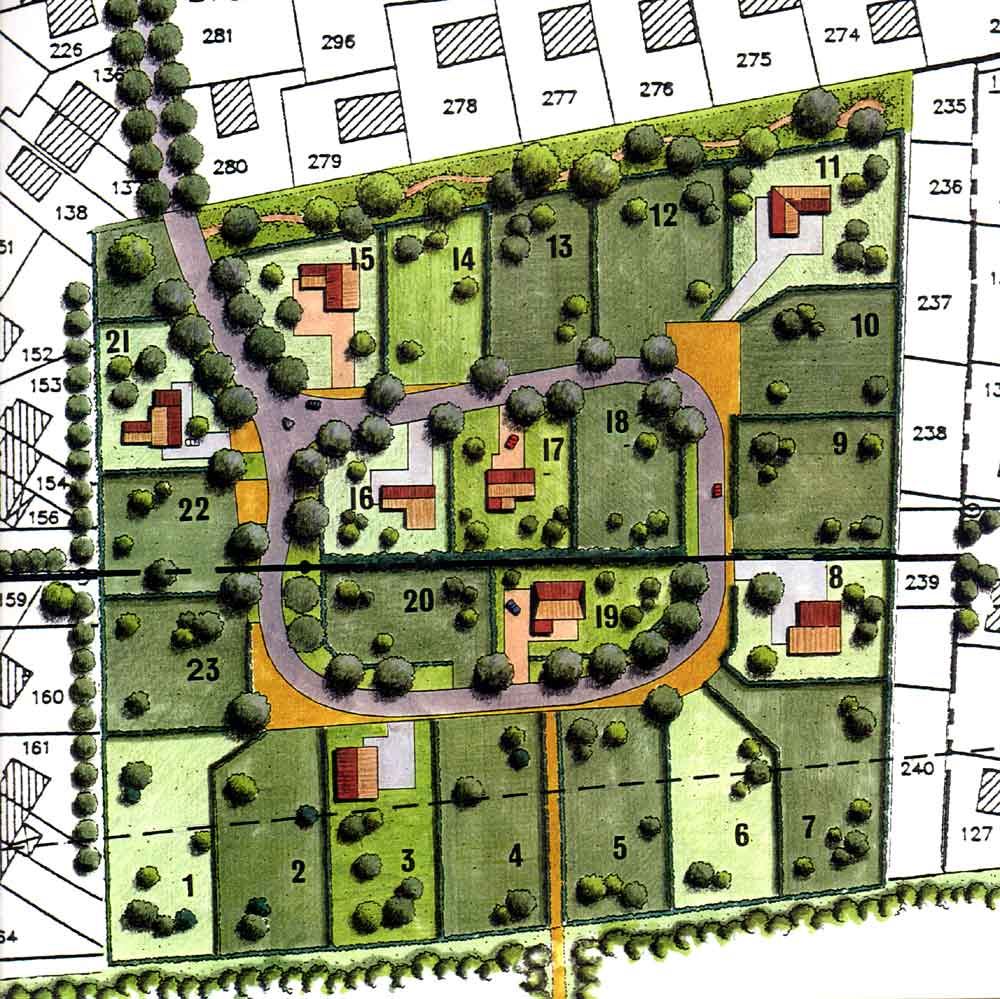
    Etude d'aménagement d'un zone pavillonnaire paysager
Commune de Yutz (57)


 
   

CONTEXTE ET OBJECTIFS DE L'ETUDE
Le projet a pour objectif de réaliser un préverdissement du parcellaire de la zone pavillonaire.
- création et aménagement paysager des parcelles à vendre
- traitement des voiries et des cheminements
- traitement paysager des espaces communs et de détente
Le projet concerne également la création d'une zone tampon située entre l'avenue et la zone
pavillonnaire, Il s’agit de créer un espace de promenade paysager, mettant en valeur l’avenue.



 
Cabinet d'Architecture en Paysage - 1, rue du tour du village - 88220 - RAON AUX BOIS - Tél : 03.29.25.83.99 - liojacquey.architecte-paysagiste@orange.fr